Вентилятор радиальный ВР-80-75-3,15-О-РН-1,5/3000/220-380-Л0-У2

  • photo 3
  • photo 4
  • photo 5
  • photo 6
Вентилятор радиальный ВР-80-75-3,15 1,5/3000
Производитель: РОВЕН
Вентиляторы низкого давления ВР-80-75-3,15 применяются в стационарных системах вентиляции и кондиционирования, воздушного отопления, технологических установках и т.д.
- Лопатки рабочего колеса - загнутые назад
- Корпус вентилятора из оцинкованной стали
- Рама вентилятора из оцинкованной стали
- Трехфазный асинхронный двигатель (380 В)
- Конструктивная схема 1 по ГОСТ 5976-90
- Класс защиты двигателя IP54.
28 223.00 ₽
 шт

Технические характеристики вентилятора

Напряжение380В 50Гц
Фазность3~
Потребляемая мощность1,5 кВт
Частота вращения3000 об/мин
Ток3,46 А
Класс защиты двигателяIP54
Регулятор скорости333M1008
Вес35,1 кг
Гибкие вставки (875х875 мм)ВГ/ВГТ-D315/349
ВГ/ВГТ-ВР/ВЦ-3,15-220*220
ВиброизоляторыДО 38 (4 шт. - поставляются отдельно)
Тип электродвигателяАИР80А2

Аэродинамические характеристики вентилятора ВР-80-75-3,15

Аэродинамические характеристики вентилятора ВР 80-75-3,15

Акустические характеристики вентиляторов ВР-80-75-3,15

Частота вращения, об/минУровень звуковой мощности, дБ в октавных полосах частот, ГцОбщий, дБА
631252505001000200040008000
1500656876696765574874
3000788184928583817392

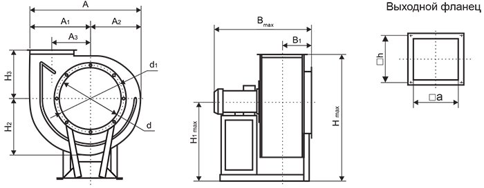
Габаритные и присоединительные размеры

Размеры вентилятора ВР-80-75-3,15
А*, ммА1, ммА2, ммA3, ммBmax, ммB1, ммH**max, ммH1max, ммH2, ммH3, ммd, ммd1, ммa, ммh, мм
45°90°
270°
135°
315°
45°90°
572516522666334238205596202644808734400278244315349221241
*Размер, зависящий от корпуса вентилятора.
** Максимальная высота при различных положениях корпуса вентилятора(0°,45°,90°).
Габаритные размеры Bmax и H1max соответственно зависят от устанавливаемого двигателя. Габаритный размер Hmax зависит от положения корпуса и устанавливаемого двигателя.

Габаритные и присоединительные размеры основания рамы вентиляторов серии ВР 80-75

Габаритные и присоединительные размеры основания рамы вентиляторов серии 80-75
№ вентилятораТип электродвигателяА, ммВ, ммС, ммF, ммK, ммL, ммM, ммn, шт.
3,15АИР63-8044525427820903098

Расшифровка маркировки ВР-80-75-3,15-К1-РН-2,2/3000/220-380-Л0-У1:

  • ВР 80-75 – серия, вентилятор центробежный/ радиальный серия ВР;
  • 3,15 – номер вентилятора (по наружному диаметру рабочего колеса в дециметрах);
  • К1 – коррозионностойкий (по таблице «Исполнение вентиляторов по назначению и материалам»);
  • РН – комплектация рабочим колесом с назад загнутыми лопатками;
  • 2,2 – мощность электродвигателя, кВт;
  • 3000 – частота вращения рабочего колеса, об/мин;
  • 220-380 – напряжение питания электродвигателя, В (220-380В для мощности от 0,37 до 7,5 кВт;
  • Л0 – положение корпуса.
  • У1 – климатическое исполнение и категория размещения по ГОСТ 15150 
         (У1 - установлен электродвигатель с климатическим исполнением У2 и кожух защиты электродвигателя (Кожух ЭД), уже установленный на вентилятор                       
          У2 - установлен электродвигатель с климатическим исполнением У2).

Положение корпуса вентилятора

Вентиляторы изготавливаются как правого, так и левого вращения (правое почасовой стрелке, левое против часовой стрелки - вид со стороны всасывания). Корпус(улитка) изготавливается с углом разворота как показано ниже.

Положение корпуса вентилятора левое
Положение корпуса вентилятора левое правое

Исполнение вентиляторов

- общего назначения (О);
- теплостойкие (Ж2);
- коррозионностойкие (К1);
- коррозионностойкие, теплостойкие (К1Ж2);
- дымоудаления (ДУ400 или ДУ600) - только с No4,0 до 12,5;
- взрывозащищенные (В1 или В2);
- взрывозащищенные теплостойкие (В1Ж2);
- взрывозащищенные коррозионностойкие (ВК1);
- взрывозащищенные коррозионностойкие теплостойкие (ВК1Ж2).

Номенклатура вентиляторов ВР-80-75

№ вентилятора Частота вращения, об/мин Тип электродвигателя Потребляемая мощность, кВт Ток, А Масса, кг Регулятор скорости Гибкие вставки Виброизоляторы
тип шт
2,5 1500 АИР56А4 0,12 0,54 15,1 333M1006 ВГ/ВГТ-D250/289
ВГ/ВГТ-ВР/ВЦ-2,5-175*175
ДО 38 4
АИР56В4 0,18 0,62 14,9
АИР63А4 0,25 0,79 16,3
3000 АИР63В2 0,55 1,4 19,7 333M1007
АИР71А2 0,75 1,83 19,7
3,15 1500 АИР63А4 0,25 0,79 25,7 333M1006 ВГ/ВГТ-D315/349
ВГ/ВГТ-ВР/ВЦ-3,15-220*220
ДО 38 4
АИР63В4 0,37 1,2 26,4 333M1007
3000 АИР80А2 1,5 3,46 35,1 333M1008
АИР80В2 2,2 4,85 39,1 333M1009
4,0 1000 АИР63В6 0,25 1,04 40,8 333M1006 ВГ/ВГТ-D400/434
ВГ/ВГТ-ВР/ВЦ-4,0-280*280
ДО 38 4
АИР71А6 0,37 1,39 44 333M1007
1500 АИР71В4 0,75 2,18 44,3 333M1007 ДО 39
АИР80А4 1,1 2,9 48,4 333M1008
3000 АИР100L2 5,5 11,1 69,2 333M1012
АИР112М2 7,5 14,9 77,7 333M1013
5,0 1000 АИР71В6 0,55 1,81 66,6 333M1007 ВГ/ВГТ-D500/534
ВГ/ВГТ-ВР/ВЦ-5,0-350*350
ДО 39 6
АИР80А6 0,75 2,4 70 333M1008
1500 АИР90L4 2,2 5,1 87,3 333M1010
АИР100S4 3,0 7,12 88,3
6,3 1000 АИР100L6 2,2 5,65 120 333M1010 ВГ/ВГТ-D630/665
ВГ/ВГТ-ВР/ВЦ-6,3-441*441
ДО 40 6
АИР112МА6 3,0 7,77 135 333M1011
1500 АИР112М4 5,5 12,1 140 333M1013
АИР132S4 7,5 15,75 162,5 333M1014
8,0 1000 АИР132S6 5,5 13,02 215 333M1013 ВГ/ВГТ-D800/829
ВГ/ВГТ-ВР/ВЦ-8,0-560*560
ДО 42 6
АИР132М6 7,5 17,5 232 333M1014
АИР160S6 11,0 24,75 278 333M1015
1500 АИР160М4 18,5 37,7 294 333M1017
АИР180S4 22,0 44,31 319 ATV212HD30N4
АИР180М4 30,0 58,6 319 ATV212HD37N4
10,0 750 АИР160S8 7,5 18,75 394 333M1014 ВГ/
ВГТ-D1000/1030
ВГ/ВГТ-ВР/ВЦ-10,0-700*700
ДО 43 6
АИР160M8 11,0 26,5 414 333M1015
1000 АИР160M6 15,0 32,6 416 333M1016
АИР180М6 18,5 38,8 382 333M1017
АИР200М6 22,0 45,1 495 ATV212HD30N4
АИР200L6 30,0 60,0 495 ATV212HD37N4
12,5 750 АИР200М8 18,5 42,0 762 333M1017 ВГ/ВГТ-D1250/1280
ВГ/ВГТ-ВР/ВЦ-12,5-875*875
ДО 44 6
АИР200L8 22,0 49,5 777 ATV212HD30N4 ДО 45 6
АИР225М8 30,0 64,2 834 ATV212HD37N4

Сайт использует рекомендательные технологии и файлы cookie